Nowe Osiedle ul. Makuszyńskiego Częstochowa
Częstochowa Pokaż na mapie ›
Odświeżone: Piątek, 03 Październik, 2025 12:04
550 000 zł
8333 zł/m2
Szczegóły ogłoszenia
- Kategoria: Mieszkania / Sprzedaż
- Powierzchnia:66 m2
- Liczba pokoi:3 pokoje
- Zabudowa:Dom
- Piętro :Parter
- Liczba pięter:1 piętro
- Rynek:Pierwotny
- Rok budowy:2024
- Stan:Do odświeżenia
- Sprzedaż:Pośrednik
- Inf. dodatkowe:Balkon, Ogródek
- Cena: 550 000 zł / 8333 zł/m2
- Ulica: Makuszyńskiego
Opis oferty
Nowe Mieszkania ul. MakuszyńskiegoBiuro Nieruchomości zaprasza do zapoznania się z ofertą nowej inwestycji przy ul. Makuszyńskiego w dzielnicy Północ w Częstochowie.
Osiedle zlokalizowane pośród domów jednorodzinnych w dzielnicy Północ.
Powstaną trzy budynki dwukondygnacyjne, w sumie powstanie 36 mieszkań.
Mieszkania na parterze z ogródkiem wielkości od 60m2 , mieszkania na piętrze z tarasem 15,19m2.
Każde z mieszkań posiadać będzie osobne wejście.
Jedno miejsce parkingowe w cenie, możliwość dokupienia drugiego miejsca.
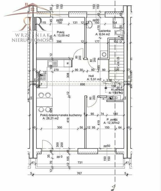
Mieszkania na parterze o powierzchni 66,62m2 z ogródkiem
- pokój dzienny z aneksem kuchennym
- 2 sypialnie
- łazienka
- przedpokój
- pomieszczenie gospodarcze
- wiatrołap
Mieszkania na pierwszej kondygnacji 68,03m2 z tarasem
- pokój dzienny z aneksem kuchennym
- 2 sypialnie
- łazienka
- WC
- przedpokój
- klatka schodowa
Apartamenty sprzedawane w stanie deweloperskim : tynki, wylewki, wszystkie instalacje, ogrzewanie gazowe, okna plastikowe trzyszybowe, drzwi wejściowe.
Osiedle zamknięte, dojazd wybrukowany, wjazd bramą na pilota.
Przewidywalny termin realizacji 2025rok
Zapraszam do kontaktu
ZAKUP BEZ PODATKU PCC 2%
Oferujemy bezpłatną pomoc w uzyskaniu kredytu hipotecznego.
Sprawdź zainteresowanie tym ogłoszeniem
Wyświetlenia
Data dodania
Ostatnio widziany
Obserwujących
Wysłane zapytania
Odsłony telefonu
Powiadom o podobnych ogłoszeniach
Lokalizacja: Częstochowa
Kategoria: Nieruchomości » Mieszkania » Sprzedaż
Cena: od 467500 zł do 632500 zł Powierzchnia : od 56 m2 do 76 m2
Chcę otrzymywać powiadomienia o nowych ofertach
Nieruchomości Wrześniak Rafał
Konto firmowe
Na Lento.pl od 17 wrz 2020
Strona użytkownika
- Wypromuj ogłoszenie
- Zgłoś naruszenie
- Drukuj ulotkę
- Edytuj/usuń ogłoszenie
- Udostępnij ogłoszenie
- Dodaj na Facebook



















